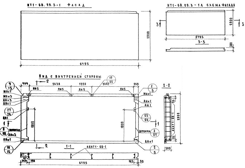
НТ1-68.29.3-1
Характеристики изделия:
| Параметр | Значение |
|---|---|
| Длина | 6795 мм |
| Ширина | 300 мм |
| Высота | 2900 мм |
| Масса | 7450 кг |
| Нормативный документ | Серия 1.132-1 |
Цена:
Рассчитать стоимостьНТ1-68.29.3-1 Наружная стеновая панель торцевая по Серии 1.132-1.
| Параметр | Значение |
|---|---|
| Длина | 6795 мм |
| Ширина | 300 мм |
| Высота | 2900 мм |
| Масса | 7450 кг |
| Нормативный документ | Серия 1.132-1 |
НТ1-68.29.3-1 Наружная стеновая панель торцевая по Серии 1.132-1.